PCMI 1 Plan de situation
Le PCMI 1 consiste en un plan représentant une partie ou l’ensemble de la commune du terrain de construction de la maison.
Le terrain doit être facilement localisable, aussi il convient généralement de l’entourer sur le plan de situation.
L’objectif de l’administration est de repérer les règles de droits afférents au terrain qui fait l’objet de la demande d’autorisation de construire.
Le plan de situation doit en outre permettre de visualiser la densité de l’habitat, ainsi que l’organisation des principaux éléments structurants (voirie, ouvrages d’art, rocades).
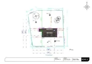
PCMI 2 Plan de masse
Le PCMI 2 Plan de masse consiste en une représentation en vue aérienne de la parcelle qui fait l’objet de la demande de permis de construire.
L’administration sera peut être amenée à effectuer des mesures directement sur le plan : il est donc impératif que le PCMI 2 Plan de masse soit dessiné à l’échelle (en général, au 1/200 e ou au 1/500 e).
Le PCMI 2 Plan de masse doit également permettre de visualiser les volumes et l’implantation des bâtiments existants et/ou à construire : la maison est-elle placée à l’alignement ? Le garage est-il accolé à la maison ?
L’implantation des constructions peut en effet faire l’objet de réglementations particulières. A ce titre, le PCMI 2 Plan de masse constitue très clairement LA pièce à réussir.
Le PCMI 2 Plan de masse peut aussi représenter les aménagements extérieurs, notamment les allées, les terrasses et les plantations.
Enfin, le PCMI 2 Plan de masse doit reprendre l’emplacement de la ligne et l’altimétrie du PCMI 3 Plan de coupe ainsi que l’emplacement des prises de vue des PCMI 7/8 Photographies en environnement proche et lointain.
PCMI 3 Plan en coupe du terrain et de la construction
Le PCMI 3 Plan en coupe du terrain et de la construction illustre le profil du terrain ainsi que le profil de la maison à construire.
Selon l’emplacement du plan en coupe, il peut également être nécessaire de dessiner les constructions déjà existantes sur le terrain.
Le profil des constructions ne fait apparaitre que le contour extérieur : il s’agit d’une silhouette symbolisant le volume général de la maison.
Le profil du terrain est dessiné selon une ligne symbolisant la pente : si la ligne monte, cela signifie que la pente est ascendante. La réciproque étant que lorsque la ligne descend, la pente du terrain est alors descendante.
Également, le PCMI 3 Plan en coupe témoigne de :
- l’organisation des constructions les unes par rapport aux autres (à quelle distance est la maison par rapport à une annexe ?)
- et de l’implantation des constructions par rapport aux voies publiques et limites séparatives (à quelle distance est la maison par rapport à la rue ?)
PCMI 4 Notice décrivant le terrain et présentant le projet
C’est l’article R.431-8 du code de l’urbanisme qui définit le contenu de la notice décrivant le terrain et présentant le projet.
Le PCMI 4 Notice décrivant le terrain et présentant le projet est le seul document écrit à joindre dans tous les cas à la demande de permis de construire.
Gare à une idée reçue : le PCMI 4 ne se borne pas à décrire les matériaux utilisés ainsi que le terrain. Il doit également montrer en quoi le projet s’harmonise au paysage architectural.
Le sommaire type du PCMI 4 est le suivant (attention, ce sommaire est à compléter et à modifier en fonction du projet) :
- Objet du projet : description du projet (maison à construire, abri de jardin, véranda), hauteurs au faitage et à l’égout du toit, dimensions
- Description du terrain : adresse du terrain, références cadastrales, contenance, altimétrie de la pente
- Description des matériaux utilisés et leurs teintes : matériaux utilisés pour la toiture, les façades, les menuiseries, les éléments vitrés, éventuellement pour les structures du bâtiment et ses fondations
- Traitement des clôtures : description des modalités d’accès au terrain et au bâtiment, description des matériaux, teintes et dimensions des clôtures
- Réseaux et assainissement : mention du type d’assainissement prévu et du mode de raccordement aux réseaux
- Traitement des espaces libres : description des aménagements extérieurs (allée, terrasse)
- Éléments végétaux : description des plantations
PCMI 5 Plan des façades et des toitures
Le PCMI 5 est un plan à l’échelle illustrant l’ensemble des façades qui seront créées ou modifiées à l’issue des travaux.
Le PCMI 5 doit être exhaustif : un PCMI 5 trop partiel sera systématiquement refusé
Par exemple, pour une maison, le PCMI 5 va illustrer :
- l’apparence des fenêtres – auront-elles de croisillons ? des battants ?
- l’apparence des portes – porte pleine, porte PVC, porte vitrée ?
- l’aspect de la toiture – quelles sont les teintes prévues ? est-il prévu d’installer une cheminée en toiture ?
PCMI 6 Document graphique
Il ne s’agit pas d’un plan, mais d’un document illustré représentant la maison à construire, ses annexes, les aménagements extérieurs, et éventuellement les constructions avoisinantes.
Le PCMI 6 Document graphique peut être un photomontage, une image de synthèse ou un dessin (dès lors que ce dernier a été réalisé de manière professionnelle).
Le PCMI 6 est à joindre dans tous les cas : il témoigne de l’intégration du projet sur son terrain et au regard de la continuité architecturale.
La plus grosse difficulté consiste très certainement à trouver des moyens techniques permettant d’élaborer le PCMI 6.
Aussi, seuls des logiciels ou une parfaite maitrise du dessin peuvent parvenir à un résultat convaincant.
PCMI 7 Photographie en environnement proche
Le PCMI 7 Photographie en environnement proche doit accompagner la demande de permis de construire. Le PCMI 7 est une prise de vue orientée vers la surface qui sera occupée par le projet.
PCMI 8 Photographie en environnement lointain
Le PCMI 8 Photographie en environnement lointain est un cliché qui permet de distinguer la surface qui sera occupée par le projet, mais aussi le paysage dans lequel il s’insère.
Généralement, le PCMI 8 est pris à partir de la voie publique afin d’offrir un panorama des constructions aux alentours du projet.
Comment réaliser correctement la demande de permis de construire ? Toutes les infos pour réussir son dossier dans nos exemples de permis de construire commentés !
Exemple permis de construire
Plus d’infos sur ce sujet :
Dessiner un plan de maison
Plans de maison en L : exemple gratuit pour un permis de construire ou une déclaration préalable
Permis de construire hangar
Construire sans permis de construire
Certains plans ne sont pas examinés : est-ce vrai ?








