Vos plans sur mesure, faits par un pro

Vous voulez construire vous même mais vous voulez évitez les erreurs de conception et gagner du temps ?
Alors faites réaliser votre dossier de conception par un Expert de la terrasse bois. Nous passerons du temps ensemble (téléphone, email) pour déterminer vos besoins, nous vous conseillerons sur l’aménagement. A partir de là, nous réaliserons un dossier technique sur mesure (plans détaillés de réalisation, plans en perspective, nomenclature et liste de matériaux, vidéos de simulation 2D).
- ContenuVues en 3D, Plans de structure, Plans d'implantation des plots, Plans de détails de réalisation, Liste de matériaux, Animation en 3D de votre future terrasse, Assistance téléphonique
– Vous avez un projet de construction de terrasse en bois. Mais vous avez déjà passé beaucoup de temps à chercher des informations sur le Web et vous vous rendez compte que cela n’est pas si simple.
- Vous êtes conscient que le résultat final dépend énormément de la conception initiale.
- Vous savez que la réalisation de plans détaillés est indispensable. Ces plans vous aideront à tout prévoir, les achats, les étapes de la construction, etc.
- Mais vous ne voulez pas passer des dizaines d’heures à utiliser un logiciel de dessin complexe.
Ne vous arrachez plus les cheveux. Évitez les erreurs, gagnez du temps et faites-vous conseiller par un Ingénieur expert en terrasse en bois.
Pour le prix de 1m² de terrasse, offrez-vous les services d’un professionnel. Simplifiez-vous la vie !}}
Nous réalisons la conception et les plans de votre terrasse en bois, à vos mesures et selon vos spécifications.
Pour un tarif très compétitif, le dossier que nous réalisons pour vous sur mesure pour vous comprend :
- plusieurs vues en 3D,
- les plans de structure,
- les plans d’implantation des plots,
- des plans de détails de réalisation,
- une liste de matériaux, avec un estimatif des coûts,
- une animation en 3D de votre future terrasse,
- une assistance téléphonique de 30 minutes.
Il nous faut 5 à 10 jours ouvrés [1] pour réaliser votre demande. Le dossier de conception que nous réalisons pour vous sera envoyé par email au format PDF.
Vues en 3D
Les vues en 3D vous permettent de visualiser votre projet terminé. Au moins trois vues différentes sont incluses.
Vous choisissez les matériaux : pin traité classe 4, Robinier, Teck, Ipé, composite, etc. pour obtenir un rendu réaliste.
Vues éclatées
Vous aurez une vue éclatée qui vous permettra de distinguer tous les éléments constituants votre terrasse.
Plans de structure
Les plans de structure à l’échelle sont faciles à lire et à comprendre. Ils vous permettrons de réaliser vous-même la structure de votre terrasse. Les détails de réalisation sont indiqués. Nous calculons et optimisons les dimensions et les sections de pièces de bois.
La conception des plans est faîte selon les normes européennes, pour un usage domestique uniquement (habitation individuelle).
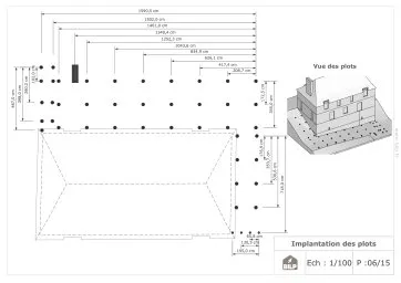
Plans d’implantation des plots
Les plans d’implantation vous permettrons de positionner et de réaliser vos plots très précisément.
Liste de matériaux
La liste de matériaux vous permet d’estimer le prix final de votre terrasse en bois, et surtout de faire vos achats en toute sérénité, sans rien oublier. Vous ne courrez plus entre votre chantier et le marchand de matériaux.
Cette liste peut être envoyée directement à votre marchand de matériaux pour réalisation d’un devis. La liste est au format EXCEL. Vous pouvez donc l’éditer, la modifier, ajouter vos informations, etc.
Animation en 3D de votre future terrasse
C’est la cerise sur le gâteau. Cette animation vous permet de visualiser votre projet dans l’espace, comme si vous y étiez.
Ainsi, vous pouvez apprécier le rendu final, vous rendre mieux compte des proportions, etc.
Voici deux exemples d’animation :
Assistance téléphonique
Cet entretien préliminaire facultatif d’une demi-heure nous permettra de mieux définir ensemble votre projet. Un expert répondra à vos questions. Si vous le souhaitez, cet expert vous suggérera des idées d’aménagements.
Ce que vous devrez nous fournir
- Plan(s) contenant les dimensions du jardin et de la maison, si les plans sont suffisamment précis, votre maison sera modélisée et apparaitra sur les plans et sur l’animation en 3D.
- plan préliminaire de votre futur terrasse avec les dimensions principales, un plan à main levée est suffisant,
- des informations techniques telles que la hauteur de la terrasse, la nature du sol, etc.
- des photos du futur emplacement.
Le déroulement de la prestation
Vous passez commande en utilisant le formulaire ci-dessous.
Un technicien du Bureau d’Etude vous contacte pour vous demander quelques informations (pièces à fournir listée ci-dessus).
Si vous le désirez, vous pouvez demander un entretien téléphonique avec Bruno, de façon à mieux définir votre projet. Mais nous préférons de loin les échanges écrits par courriel.
Dés réception de vos informations, un technicien se met au travail. Il peut être amené à vous contacter pour des compléments d’informations.
Le technicien vous envoie les premières esquisses. Vous pouvez donner vos avis, demander des modifications. Le technicien effectue les modifications selon vos souhaits.
Quand la conception est achevée, nous vous envoyons votre dossier au format PDF, contenant toutes les vues, les plans, la liste des matériaux, etc. ainsi que le fichier SKETCHUP, une animation 3D, le fichier EXCEL de nomenclature.
Il ne vous reste plus qu’à vous retrousser les manches et passer à la phase "chantier".
Pour vos achats, la boutique BILP vous permettra d’obtenir les meilleurs produits pour votre terrasse, avec la garantie "Prix le plus bas".
Commandez votre dossier dés maintenant
Pour toutes demandes de renseignements, contactez-nous au 05 82 95 48 37.
Voulez-vous voir un EXEMPLE de dossier COMPLET ?
je peux vous l’envoyer GRATUITEMENT au format PDF. Il s’agit du dossier de conception d’une belle TERRASSE EN BOIS SUR PILOTIS. Peut-être que cela vous inspirera pour votre projet.
Et surtout, vous vous rendrez compte de la qualité de notre travail.
Pour cela, indiquez-moi votre adresse email pour que je puisse vous l’envoyer.
<squeeze1|campagne=p_terrassebois_prest_plans|art_retour=https://www.woodiy.fr/article75|titre=OUI, envoyez-moi le lien pour télécharger le dossier de TERRASSE BOIS et envoyez-moi des informations utiles concernant la construction en Bois|bouton=Je télécharge|campaign_token=89ilK|telephone=oui|image_thelia=44736>
Notes
[1] à partir de la réception des informations décrivant votre projet























